hartmann|s

Architekten aus Überzeugung

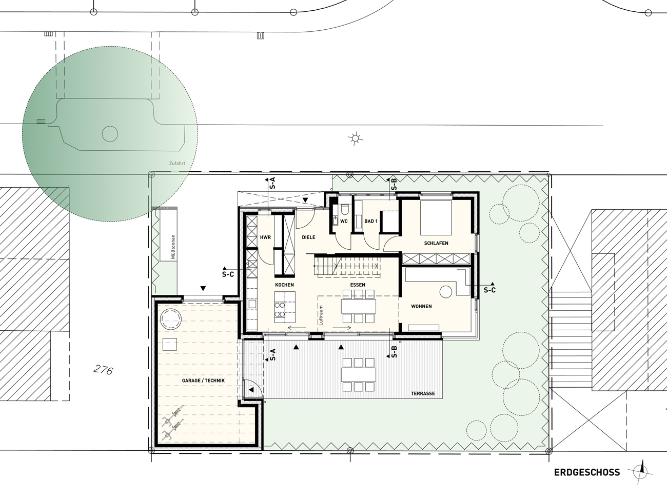
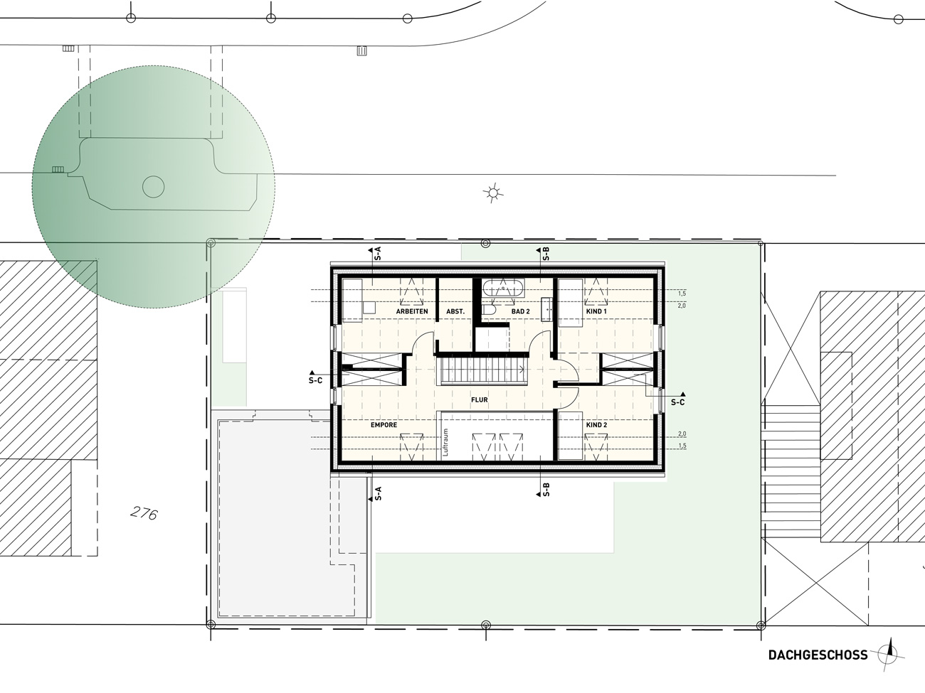
DAS.FAMILIEN.HAUS

Luft, Licht und Liebe

Eine „Familie“ verändert sich mit den Jahren – DAS.FAMILIEN.HAUS zu planen, welches diese Veränderungen ermöglicht, ist daher immer wieder eine reizvolle Aufgabe für uns. Dabei gilt es aus den individuellen Wünschen und Bedürfnissen der Bauherren ein Gebäude zu entwickeln, welches dem Familienleben Licht, Luft und flexible Nutzung bietet. Blickbeziehungen zwischen Räumen und Ebenen waren hier der Wunsch, aber auch Rückzugsbereiche.
Die Liebe zu einfachen Materialien wie Beton, Holz, Sichtestrich und weiß gestrichenen Putzflächen verbindet uns mit den Bauherren –  sie bilden künftig den ruhigen Rahmen für das bunte Familienleben.

Category:
Wohnen, Münster

Neubau Wohnhaus

Bauzeit: 12/2024- 01/2026

ca. 160m² Wohnfläche

Geothermie, Photovoltaik